Casa indipendente in vendita

Maser, Via Cornuda - Muliparte
€ 300.000
5 locali 5 locali
300 Mq 300 Mq
2 bagni 2 bagni

Casa indipendente in vendita

Maser, Via Cornuda - Muliparte

Descrizione annuncio

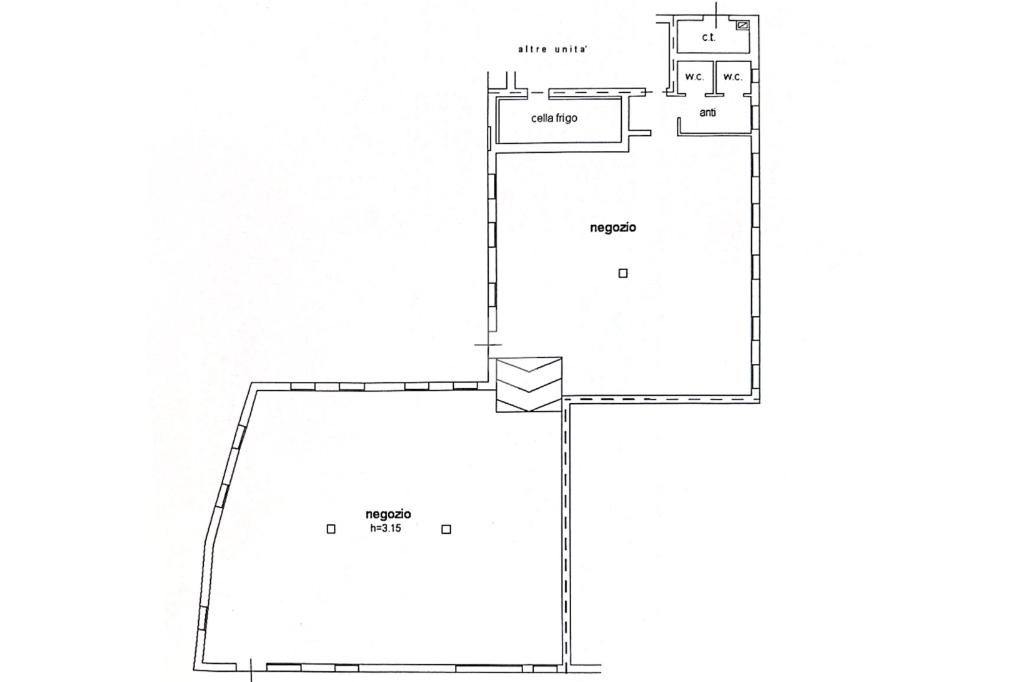
in vendita un immobile di ampia metratura, circa 600 mq complessivi, distribuito su due livelli, ideale per chi desidera realizzare un progetto unico e personalizzato. Al piano terra si sviluppa una spaziosa area commerciale di oltre 300 mq, già dotata di impianto di condizionamento, caratterizzata da ambienti ampi, luminosi e versatili, perfetti per accogliere diverse tipologie di attività e garantire comfort e funzionalità.

Il primo piano, di ulteriori 300 mq circa, si presenta allo stato grezzo, offrendo un’opportunità straordinaria per essere completato e modellato secondo le proprie esigenze. Questo spazio rappresenta il vero valore aggiunto della proprietà, permettendo di dare forma a idee innovative e soluzioni creative, sia in ambito professionale che imprenditoriale.

Una soluzione ideale per chi cerca non solo uno spazio, ma una base concreta su cui costruire un progetto distintivo e di forte impatto.

Mostra tutto

Nelle vicinanze

Trasporto pubblico Trasporto pubblico
Trasporto pubblico
1,3 Km
Scuole Scuole
Elementari di Maser
360 m
Scuola Media G.Veronese di Maser
770 m
Scuole
1,6 Km
Scuola Secondaria di secondo grado
3,0 Km
Farmacia Farmacia
Farmacie Più
1,4 Km
Supermercati Supermercati
Cadoro
2,8 Km
Prix
3,0 Km
Eurospar
3,0 Km
Negozi Negozi
Panificio
1,3 Km
Valeri84 Rider District
2,0 Km
Negozi
2,4 Km
Camiceria Arcadia
2,6 Km
Valerisport
2,7 Km
Bar Bar
Bar Roma
130 m
Osteria
370 m
Bar
380 m
Bar Centrale
1,6 Km
Bin Cafè
1,9 Km
Ristoranti Ristoranti
La Locanda
80 m
de Gusto
370 m
Trattoria al Parco ex Duca di Baviera
1,1 Km
Ristorante Pizzeria "Le Motte"
1,1 Km
Osteria Jodo
2,0 Km
Mostra tutto

Caratteristiche

Rif.:
61206900
Piano:
2 di 2 (Piano su più livelli)
Posti auto:
2
Camere da letto:
3
Arredamento:
Assente
Condizionamento:
Autonomo
Mostra tutto
Prezzo Prezzo
€ 300.000
Rata mutuo Rata mutuo
€ 1.422 / mese
Spese annue Spese annue
€ 0
Proponi il tuo prezzoProponi il tuo prezzo

Classe Energetica

Questo immobile è esente da classe energetica
Anno di costruzione:
1970
Riscaldamento:
Assente

Ti interessa visionare l'immobile?

Fissa un appuntamento  Fissa un appuntamento

Richiedi informazioni

Clicca su Leggi per aprire l'informativa
* Questi campi sono obbligatori

Calcola il tuo mutuo

Semplice e senza impegno
Anticipo

( % )
Mutuo

( % )

pochi semplici passi

inserisci i tuoi dati
Questionario completato
Grazie per aver richiesto un appuntamento senza impegno con un nostro Consulente del Credito e Assicurativo.

Hai inserito correttamente tutti i dati necessari e a breve riceverai una e-mail con un link da convalidare per inviare i tuoi dati.
Affiliato
Studio Caerano Srl
Via Monte Grappa, 12 31031 Caerano Di San Marco (TV)

Il nostro staff


  • Fahd Ibrahimi
    Collaboratore

  • Marina Cunzo
    Affiliata

  • Rachele Mion
    Coordinatrice

  • Andrea Nardi
    Collaboratore

  • Giulia Zanella
    Collaboratrice

  • Edoardo Maria Cunzo
    Responsabile
Via Monte Grappa, 12 31031 Caerano Di San Marco (TV)
Zona: Caerano di San Marco - Maser - Cornuda - Castelcucco - Monfumo - Pieve del Grappa
Mostra su mappa
Affiliato
Studio Caerano Srl
Via Monte Grappa, 12 31031 Caerano Di San Marco (TV)

2026 Tecnocasa Franchising S.p.A. - P. IVA 08365160152 - Via Monte Bianco 60/A 20089 Rozzano (MI). Ogni agenzia ha un proprio titolare ed è autonoma. Privacy policy | Policy utilizzo | Cookie policy