Villa a schiera d'angolo in vendita

Castelcucco, Via san gaetano
€ 110.000
5 locali 5 locali
200 Mq 200 Mq
2 bagni 2 bagni

Villa a schiera d'angolo in vendita

Castelcucco, Via san gaetano

Descrizione annuncio

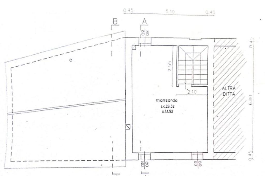
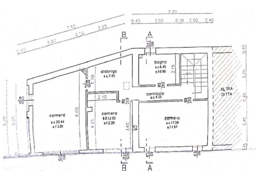
CASTELCUCCO. Proponiamo in vendita un immobile al grezzo di circa 168 mq calpestabili, situato nelle vicinanze del centro di Castelcucco, all’interno di una corte che garantisce tranquillità e riservatezza.

L’abitazione si sviluppa su tre livelli.
Al piano terra troviamo una zona cucina con angolo cottura, un bagno, una spaziosa lavanderia e un comodo ripostiglio.
Il primo piano è composto da tre ampie camere da letto e un bagno a servizio del piano.
All’ultimo piano si sviluppa un grande spazio mansardato, ideale come stanza hobby, palestra o area multifunzionale, personalizzabile in base alle proprie esigenze.

L’immobile, essendo allo stato grezzo, offre la possibilità di essere completato e rifinito secondo i propri gusti e necessità.

Completano la proprietà uno scoperto privato, soggetto a servitù di passaggio verso un cortile attiguo, e un garage singolo.

Per ulteriori informazioni contattateci in Agenzia e seguiteci anche su Instagram cliccando mi piace sulla pagina 'tecnocasa_caerano'.

Scaricate gratuitamente l'app Tecnocasa sul vostro smartphone e sarete sempre aggiornati sulle nostre proposte di vendita.

Mostra tutto

Nelle vicinanze

Trasporto pubblico Trasporto pubblico
Trasporto pubblico
690 m
Scuole Scuole
Scuole medie di Castelcucco
740 m
Istituti Filippin
2,0 Km
Scuole
2,0 Km
Scuola Primaria Maria Ferrarese
2,4 Km
Villa Fietta
2,9 Km
Farmacia Farmacia
Farmacia di Castelcucco
310 m
Farmacia
2,3 Km
Supermercati Supermercati
Formaggi Dalla Libera
150 m
Despar
290 m
Supermercati
2,6 Km
Negozi Negozi
Paneficio
660 m
Scopel Gianluca
2,1 Km
Negozi
2,1 Km
Bar Bar
Rock Cafè
70 m
Viceversa
420 m
Bar
660 m
Bar Montegrappa
770 m
Bar Pasticceria ALPINA
2,2 Km
Ristoranti Ristoranti
Ristorante Montegrappa
760 m
Trattoria da Memi
860 m
Trattoria da Besse
1,3 Km
Trattoria Pizzeria Collalto
1,6 Km
Trattoria Ponte Peron
1,7 Km
Mostra tutto

Caratteristiche

Rif.:
61201504
Piano:
Su più livelli di 3
Totale piani:
3
Box:
1
Posti auto:
1
Camere da letto:
3
Mostra tutto
Prezzo Prezzo
€ 110.000
Rata mutuo Rata mutuo
€ 521 / mese
Spese annue Spese annue
€ 0
Proponi il tuo prezzoProponi il tuo prezzo

Classe Energetica

Questo immobile è esente da classe energetica
Anno di costruzione:
2005
Riscaldamento:
Assente

Ti interessa visionare l'immobile?

Fissa un appuntamento  Fissa un appuntamento

Richiedi informazioni

Clicca su Leggi per aprire l'informativa
* Questi campi sono obbligatori

Calcola il tuo mutuo

Semplice e senza impegno
Anticipo

( % )
Mutuo

( % )

pochi semplici passi

inserisci i tuoi dati
Questionario completato
Grazie per aver richiesto un appuntamento senza impegno con un nostro Consulente del Credito e Assicurativo.

Hai inserito correttamente tutti i dati necessari e a breve riceverai una e-mail con un link da convalidare per inviare i tuoi dati.
Affiliato
Studio Caerano Srl
Via Monte Grappa, 12 31031 Caerano Di San Marco (TV)

Il nostro staff


  • Fahd Ibrahimi
    Collaboratore

  • Marina Cunzo
    Affiliata

  • Rachele Mion
    Coordinatrice

  • Andrea Nardi
    Collaboratore

  • Giulia Zanella
    Collaboratrice

  • Edoardo Maria Cunzo
    Responsabile
Via Monte Grappa, 12 31031 Caerano Di San Marco (TV)
Zona: Caerano di San Marco - Maser - Cornuda - Castelcucco - Monfumo - Pieve del Grappa
Mostra su mappa
Affiliato
Studio Caerano Srl
Via Monte Grappa, 12 31031 Caerano Di San Marco (TV)

2026 Tecnocasa Franchising S.p.A. - P. IVA 08365160152 - Via Monte Bianco 60/A 20089 Rozzano (MI). Ogni agenzia ha un proprio titolare ed è autonoma. Privacy policy | Policy utilizzo | Cookie policy