Rustico in vendita

Castelcucco, Via Ospedale
€ 90.000
5 locali 5 locali
142 Mq 142 Mq
2 bagni 2 bagni

Rustico in vendita

Castelcucco, Via Ospedale

Descrizione annuncio

///NOSTRA ESCLUSIVA DI VENDITA///

CASTELCUCCO. In una tranquilla zona immersa nel verde, lontano dal caos cittadino e circondata dalla natura, proponiamo in vendita un affascinante immobile dei primi del '900, completamente da ristrutturare. Si tratta di una residenza disposta su due piani fuori terra, con ampio giardino privato, ideale per chi cerca un contesto riservato e autentico, dove riscoprire il piacere della quiete e dei ritmi lenti.

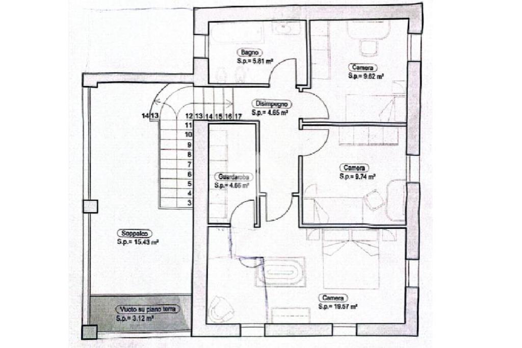
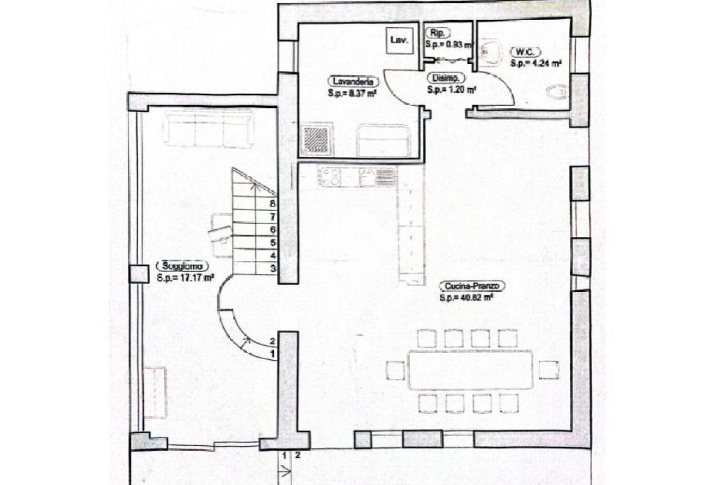
Il progetto di recupero prevede, al piano terra, una distribuzione funzionale degli spazi con una zona cucina-pranzo, un salotto accogliente, lavanderia, un servizio igienico e un soggiorno luminoso per un totale di 72,73 mq. Al primo piano, di 69,48 mq, sono previste tre camere da letto, un bagno, una zona guardaroba e un soppalco, offrendo così ambienti comodi e ben suddivisi per rispondere alle esigenze di una famiglia o di chi desidera spazi ampi e personalizzabili.

Un'opportunità unica per chi desidera investire in una proprietà dal grande potenziale, in un contesto suggestivo, con la possibilità di riportare alla luce il fascino di un'abitazione storica attraverso una ristrutturazione su misura.

Per ulteriori informazioni contattateci in Agenzia e seguiteci anche su Instagram cliccando mi piace sulla pagina 'tecnocasa_caerano'.

Scaricate gratuitamente l'app Tecnocasa sul vostro smartphone e sarete sempre aggiornati sulle nostre proposte di vendita.

Mostra tutto

Nelle vicinanze

Trasporto pubblico Trasporto pubblico
Trasporto pubblico
2,2 Km
Ricariche auto elettriche Ricariche auto elettriche
Municipio di Breda di Piave | enelX
850 m
Breda di Piave Industrie | EnelX
2,3 Km
Scuole Scuole
Scuole
1,1 Km
Scuola Primaria
1,2 Km
IC Breda di Piave
1,4 Km
Elementari
2,3 Km
Scuola Secondaria Statale di Primo Grado Don Milani
2,4 Km
Farmacia Farmacia
Farmacia Bruscagnin
950 m
Farmacia di Varago
1,6 Km
Farmacia Crepet
2,1 Km
Supermercati Supermercati
Cuor di Crai
790 m
Visotto
2,5 Km
Alì
2,9 Km
Negozi Negozi
Negozi
2,4 Km
LUNA
2,9 Km
Bar Bar
Bar
780 m
Bar Centrale
1,0 Km
Tannino
2,0 Km
Al Lampion
2,5 Km
Caffè Centrale
2,7 Km
Ristoranti Ristoranti
Pizzeria Futura
1,2 Km
Antica Osteria Zanatta
1,2 Km
Pizzeria Snack bar Fantasy
1,4 Km
Hotel Ristorante Dotto
1,5 Km
Pizza Gallery
2,1 Km
Mostra tutto

Caratteristiche

Rif.:
61204164
Piano:
2 di 2 (Piano su più livelli)
Posti auto:
2
Camere da letto:
3
Arredamento:
Assente
Condizionamento:
Assente
Mostra tutto
Prezzo Prezzo
€ 90.000
Rata mutuo Rata mutuo
€ 427 / mese
Spese annue Spese annue
€ 0
Proponi il tuo prezzoProponi il tuo prezzo

Classe Energetica

G
G
G
G
G
G
G
G
G
Anno di costruzione:
1900
Riscaldamento:
Autonomo
Tipo impianto:
A stufa
Tipo alimentazione:
Altro

Ti interessa visionare l'immobile?

Fissa un appuntamento  Fissa un appuntamento

Richiedi informazioni

Clicca su Leggi per aprire l'informativa
* Questi campi sono obbligatori

Calcola il tuo mutuo

Semplice e senza impegno
Anticipo

( % )
Mutuo

( % )

pochi semplici passi

inserisci i tuoi dati
Questionario completato
Grazie per aver richiesto un appuntamento senza impegno con un nostro Consulente del Credito e Assicurativo.

Hai inserito correttamente tutti i dati necessari e a breve riceverai una e-mail con un link da convalidare per inviare i tuoi dati.
Affiliato
Studio Caerano Srl
Via Monte Grappa, 12 31031 Caerano Di San Marco (TV)

Il nostro staff


  • Fahd Ibrahimi
    Collaboratore

  • Marina Cunzo
    Affiliata

  • Rachele Mion
    Coordinatrice

  • Andrea Nardi
    Collaboratore

  • Giulia Zanella
    Collaboratrice

  • Edoardo Maria Cunzo
    Responsabile
Via Monte Grappa, 12 31031 Caerano Di San Marco (TV)
Zona: Caerano di San Marco - Maser - Cornuda - Castelcucco - Monfumo - Pieve del Grappa
Mostra su mappa
Affiliato
Studio Caerano Srl
Via Monte Grappa, 12 31031 Caerano Di San Marco (TV)

2026 Tecnocasa Franchising S.p.A. - P. IVA 08365160152 - Via Monte Bianco 60/A 20089 Rozzano (MI). Ogni agenzia ha un proprio titolare ed è autonoma. Privacy policy | Policy utilizzo | Cookie policy